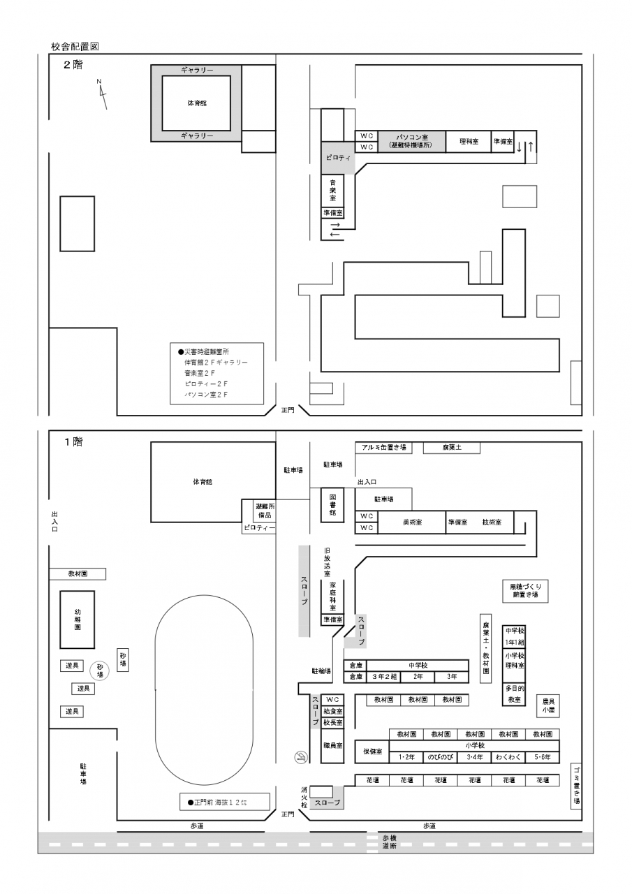
R8 校舎配置図